Get On The List

Welcome back, !

Click here to update your information

UPDATE YOUR INFORMATION

Welcome back, !

Click here to update your information

UPDATE YOUR INFORMATION

GET MIDLINE NEWS UPDATE YOUR INFORMATION UPDATE YOUR INFORMATION

3396W by Perry Homes

Price coming soon

Estimate Monthly Payment
Perry 3396 E-1
Perry 3396 W E-53
Perry 3396 W E-70
Perry 3396 W E-71

3,396 Sq Ft

4 Bed

3.5 Bath

3 - Car Garage

2 Stories

Contact

Daniel Shaikh & Tyler Dixon

Monday - Saturday:
10am - 6pm

Sunday:
Noon - 6pm

placeholder

Description:

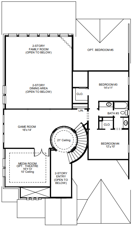
This spacious design features a two-story rotunda entry. Home office with French doors across from curved staircase. Open kitchen offers corner walk-in pantry, a 5-burner gas cooktop, generous counter space and inviting island with built-in seating space. Two-story dining area opens to two-story family room with wall of windows and a wood mantel fireplace. First-floor primary suite includes bedroom with 13-foot ceiling and wall of windows. Primary bath includes dual vanities, a freestanding tub, separate glass-enclosed shower and two large walk-in closets, one with access to utility room. First-floor guest suite. A game room, media room with French doors and two secondary bedrooms are upstairs. Covered backyard patio. Three-car garage.

More
Perry 3396 E-1
Perry 3396 W E-53
Perry 3396 W E-70
Perry 3396 W E-71

Mortgage Calculator

$
value should not be empty
$
%
%
%
$

Your Payment:

This calculator and its results are intended for illustrative purposes only and are not an offer or guarantee of financing. Rates and payment terms, if offered by a lender, will vary upon an applicant’s credit-worthiness and are subject to change. Additional costs, such as property taxes, insurance and HOA fees, may apply.

See more mortgage rates on Zillow.