Get On The List

Welcome back, !

Click here to update your information

UPDATE YOUR INFORMATION

Welcome back, !

Click here to update your information

UPDATE YOUR INFORMATION

GET MIDLINE NEWS UPDATE YOUR INFORMATION UPDATE YOUR INFORMATION

2737 W by Perry Homes

Price coming soon

Estimate Monthly Payment
Perry 2737 W E-1
Perry 2737 W E-32
Perry 2737 W E-50

2,737 Sq Ft

4 Bed

3 Bath

2 - Car Garage

1 Story

Contact

Daniel Shaikh & Tyler Dixon

Monday - Saturday:
10am - 6pm

Sunday:
Noon - 6pm

placeholder

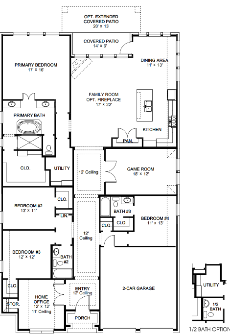
Description:

Home office with French doors set at entry with 12-foot ceiling. Game room with French doors off extended entry. Family room with wall of windows opens to kitchen and dining area. Kitchen features walk-in pantry and generous island with built-in seating space. Primary suite includes bedroom with wall of windows. Double doors lead to primary bath with dual vanities, garden tub, separate glass-enclosed shower and oversized walk-in closet. A guest suite with private bath adds to this four-bedroom home. Covered backyard patio. Two-car garage.

More
Perry 2737 W E-1
Perry 2737 W E-32
Perry 2737 W E-50

Mortgage Calculator

$
value should not be empty
$
%
%
%
$

Your Payment:

This calculator and its results are intended for illustrative purposes only and are not an offer or guarantee of financing. Rates and payment terms, if offered by a lender, will vary upon an applicant’s credit-worthiness and are subject to change. Additional costs, such as property taxes, insurance and HOA fees, may apply.

See more mortgage rates on Zillow.